Refonte
pièce à vivre
Conception et gestion du projet
51 m²
Occitanie - 32.
. La cuisine flambant neuve propose une disposition optimisée, marquant l'alliance entre fonctionnalité et esthétique. Des accents colorés et des solutions de rangement ingénieuses définissent chaque espace, fusionnant tradition et modernité pour une atmosphère chaleureuse.
Nous vous dévoilons la métamorphose d'une pièce à vivre.
La refonte inclut la création d'une authentique entrée et d'un salon, favorisant les moments en famille.


Avant

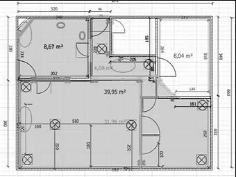
Disposition originale.
Repérez-vous dans le projet.
Après


LA DISPOSITION ORIGINALE
. Auparavant, ils se retrouvaient dans l'unique pièce servant à la fois de salle à manger et de coin télévision. Les fenêtres en bois doivent impérativement être changées. La maçonnerie et l'isolation thermique des murs nécessitent également des corrections. Une climatisation serait un plus. L'entrée se fait par la cuisine, qui est une pièce à part de la salle à manger. Très vétuste, elle doit être entièrement refaite pour offrir un minimum de fonctionnalité et beaucoup d'espace de rangement. Les propriétaires souhaitent l'ouvrir sur l'espace à vivre tout en conservant une certaine intimité. Le poêle à bois est déjà actuellement inséré dans une imposante cheminée inutile. Une pièce située au fond de la maison apporte la stricte lumière grâce à des portes au vitrage démodé. Le plateau est desservi par d'innombrables portes et couloirs, ce qui crée des coins morts servant de stockage ou de coin téléphone. Le dessous de l'escalier est utilisé comme espace de rangement, mais la lumière y est insuffisante.
Dans un foyer des années 60, les résidents souhaitent aménager un coin salon qui était jusqu'à présent inexistant afin de pouvoir rassembler leur famille grandissante.
Le salon
LES RENDUS
Découvrez la refonte de cet espace énergiquement amélioré :
-
Un véritable salon central, accueillant et moderne.
-
Une redistribution astucieuse pour optimiser l'espace et le confort.
-
Une source de chaleur placée judicieusement afin de garantir une distribution homogène.
-
Un coin bureau accompagné d'un espace de lecture.

Cliquez sur une photo pour en voir plus





LES MATIÈRES
ET COULEURS
● Plancher stratifié pour un entretien facile. ● Parement de pierres pour recréer une zone de feu authentique. ● Les meubles sont laqués en finition mate. ● Mise en place d'une table à manger extensible en hêtre. ● Un large miroir à relief trône au-dessus d'un canapé d'angle à têtes amovibles en cuir blanc. ● Coin lecture et bureau en hêtre et métal sont installés. ● Pour apporter de la légèreté, un mélange de chaises est distribué à leurs places, dont certaines sont transparentes.
Cliquez sur une photo pour en voir plus
L'envers du décor.
Du concept aux travaux,
détaillez l'évolution de l'espace.
LE CAHIER DES CHARGES
. L'entrée est déplacée pour offrir aux visiteurs un véritable sas d'accueil sans devoir se retrouver directement dans une cuisine. L'ouverture des pièces est nécessaire pour accueillir des zones conviviales. Les espaces sont entièrement repensés, délimités et épurés, apportant un flux de circulation simplifié et une luminosité directe depuis tous les espaces. Les couloirs sont supprimés, et un angle de chambre est récupéré sur la surface d'un placard intérieur afin de disposer le nouvel emplacement de la télévision, centrée dans le salon et visible depuis les zones de restauration. La décision de se passer de la cheminée non fonctionnelle est prise afin de gagner un espace considérable. Le conduit est transféré au milieu de la pièce afin d'apporter une diffusion homogène. Un coin bureau voit le jour à la place d'un coin reculé où était disposé le téléphone.



L'AVANT
. Les murs de cette pièce sont recouverts d'un motif surchargé, donnant une impression d'encombrement visuel. Un lustre en fer forgé occupe le centre de la pièce. Le carrelage au sol est désuet. L'ensemble de la pièce dégage un aspect rustique, lourd et sombre. De plus, le plafond présente de nombreuses détériorations, affectant ainsi l'état général de la pièce. Le mobilier est trop imposant et superflu, ajoutant à l'aspect encombré de l'espace. Les meubles de styles et d'époques différents manquent d'harmonie dans cette pièce. Par ailleurs, l'espace est desservi par un excès de portes, ce qui nuit à sa fluidité et à son agencement. Pour redonner vie à cette pièce et lui apporter une touche moderne et harmonieuse, des améliorations significatives sont nécessaires. Derrière les portes vitrées de la salle à manger se trouvait autrefois une pièce peu utilisée.



LES TRAVAUX
. ● Remplacement complet des fenêtres en dépose totale par un système de double vitrage en PVC. ● Isolation thermique de la pièce pour améliorer l'efficacité énergétique. ● Ouverture des espaces avec un décloisonnement total. ● Installation de poutres d'acier (IPN) pour renforcer la structure. ● Suppression de la cheminée existante pour un gain de place et déplacement des conduites pour l'installation d'un poêle à bois central. ● Suppression d'un angle et reconstruction en biais du mur en parpaing. ● Isolation thermique de la pièce pour améliorer l'efficacité énergétique. ● Révision et modifications électriques pour une meilleure sécurité. ● Pose d'un plafond tendu sur rails invisibles pour un aspect épuré et un temps de travail réduit. ● Revêtement de sol homogène dans toutes les pièces afin de créer une sensation d'espace. ● Préparation des murs, peinture et pose d'une tapisserie pour une finition soignée.
Cliquez sur une photo pour en voir plus
La cuisine
LES RENDUS
. ● Dans cette rénovation de cuisine, les propriétaires ont souhaité créer un espace semi-fermé. ● L'armature mise en place pour soutenir l'ouverture ronde répond parfaitement à leur demande. ● L'aménagement intérieur offre un agencement pratique avec les fours, la plaque de cuisson, et une desserte centrale amovible. ● L'équipement de la cuisine a subi une métamorphose complète par rapport à l'original, offrant ainsi un espace à la fois fonctionnel et esthétique. ● L'espace est désormais agréable et spacieux, permettant une circulation fluide et confortable. ● L'évier a été judicieusement placé face à la fenêtre, offrant ainsi une vue agréable tout en facilitant l'aération de la cuisine. ● À proximité, un mange-debout a été disposé, invitant à des pauses gourmandes et petits déjeuners dans un espace chaleureux et convivial.
La cuisine est harmonieusement intégrée au salon, préservant l'unité visuelle.

Cliquez sur une photo pour en voir plus


LES MATIÈRES ET COULEURS
. Une nouvelle hotte avec verre est installée au-dessus des quatre feux à gaz. La crédence est composée de carrelage en céramique. Le bac de l'évier est en résine.
Le choix s'est porté sur du stratifié pour le sol et les meubles de la cuisine, offrant ainsi une facilité d'entretien.

L'envers du décor.
Du concept aux travaux,
détaillez l'évolution de l'espace.

L'AVANT
La cuisine est restée dans son jus, avec peu de rangement et un évier coincé dans un coin.
La fenêtre inadaptée gêne la préparation de la cuisine dès qu'elle est ouverte.
Les meubles sont en piteux états, et la décoration est datée.
LES TRAVAUX
-
Remplacement total de la fenêtre.
-
Déplacement des sources électriques et des arrivées/évacuations d'eau.
-
Suppression d'une porte et reconstruction de l'ouverture.
-
Création d'une ouverture de forme ronde.
-
Pose d'une poutre métallique en forme.
-
Retrait d'une hotte vitrée de la largeur du mur.
-
Installation d'une cuisine équipée adaptée pour un grand foyer.
-
Création d'une texture murale.
-
Décoration.
-
Customisation d'objets.
Cliquez sur une photo pour en voir plus
L'entrée
LES RENDUS
. Elle accueille le visiteur sobrement et intègre de manière ordonnée les rangements nécessaires à la fonction de vestibule. Éclairée par la porte vitrée, elle bénéficie d'un puits de lumière provenant de l'étage à travers les ouvertures. Le bois a été éclairci pour conférer un aspect plus moderne.
Une véritable entrée, réaménagée avec élégance et caractère, prend place.
Cliquez sur une photo pour en voir plus
L'envers du décor.
Du concept aux travaux,
détaillez l'évolution de l'espace.

L'AVANT
La cage d'escalier est un débarras de stockage sombre,
Le vernis de la rampe est abîmé et sa couleur démodée.
La tapisserie d'époque présente de forts signes d'usure.
L'idée a été d'ouvrir les couloirs afin de récupérer la luminosité de la porte d'entrée qui n'était pas utilisée.
LES TRAVAUX
Décloisonnement.
Le mur adossé au nouvel emplacement du poêle à bois est ouvert afin d'accueillir une conduite qui chauffera l'étage.
Coffrage de la tuyauterie.
Modifications électriques.
Préparation des murs et peinture.
Décapage et entretien de l'escalier et de son garde-corps.
Cliquez sur une photo pour en voir plus






























































